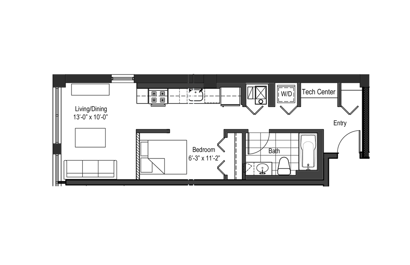
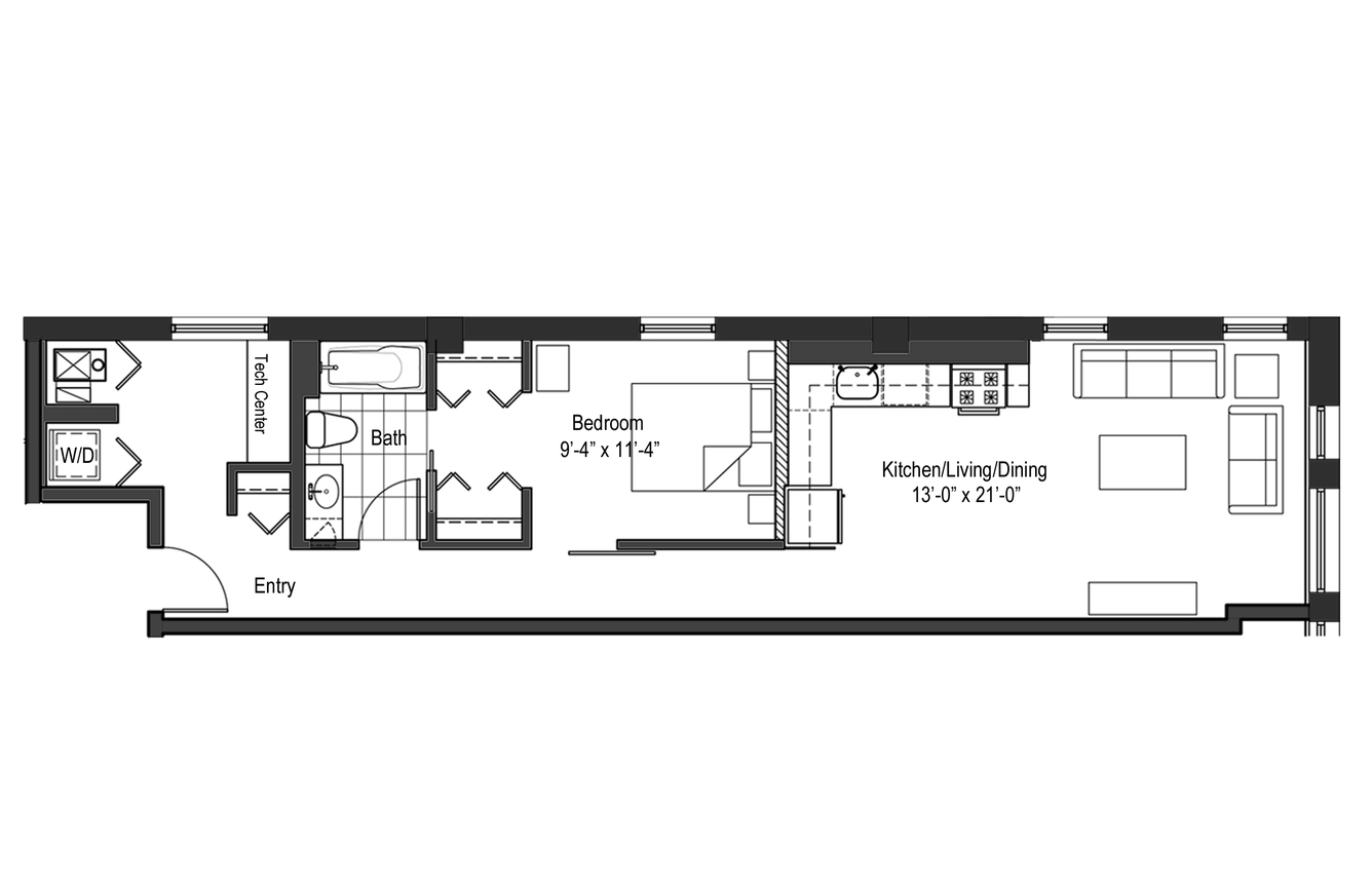
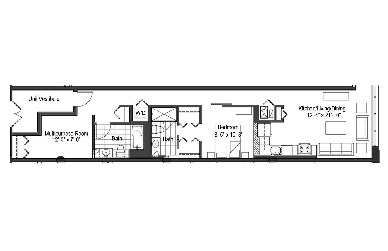
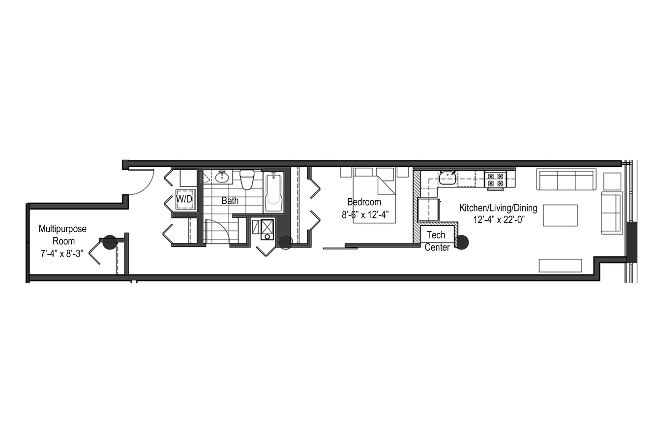
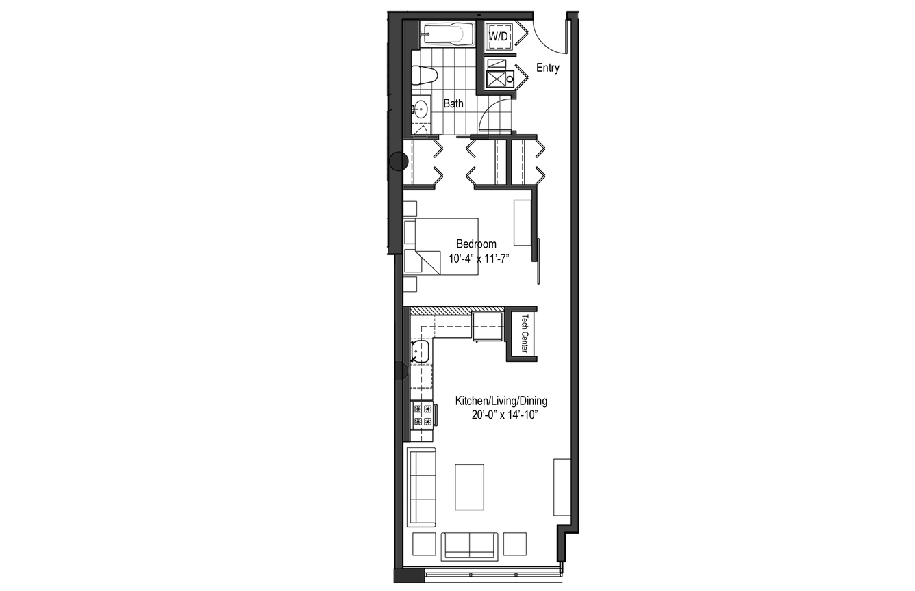
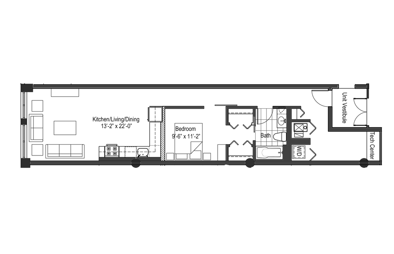
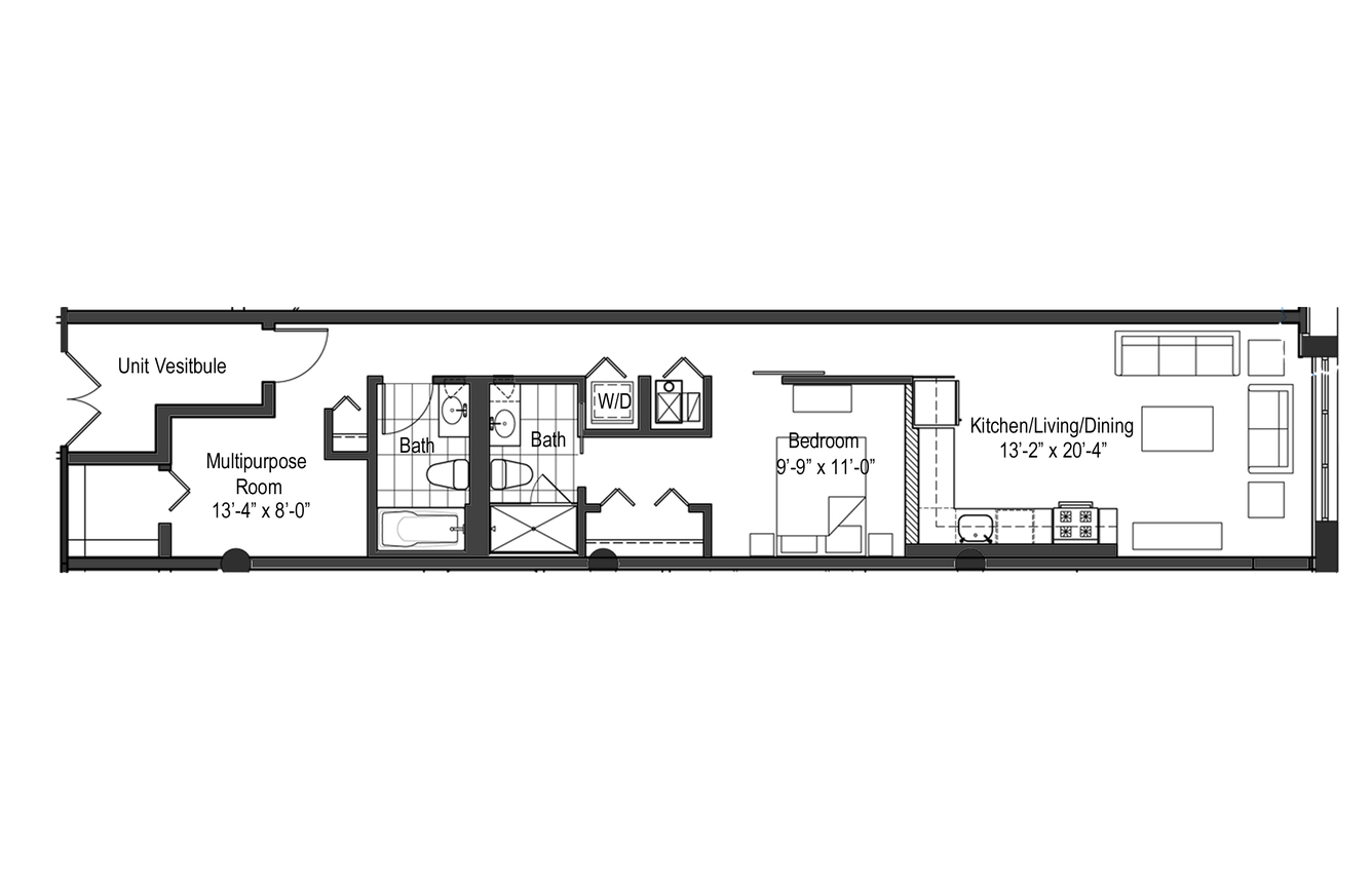
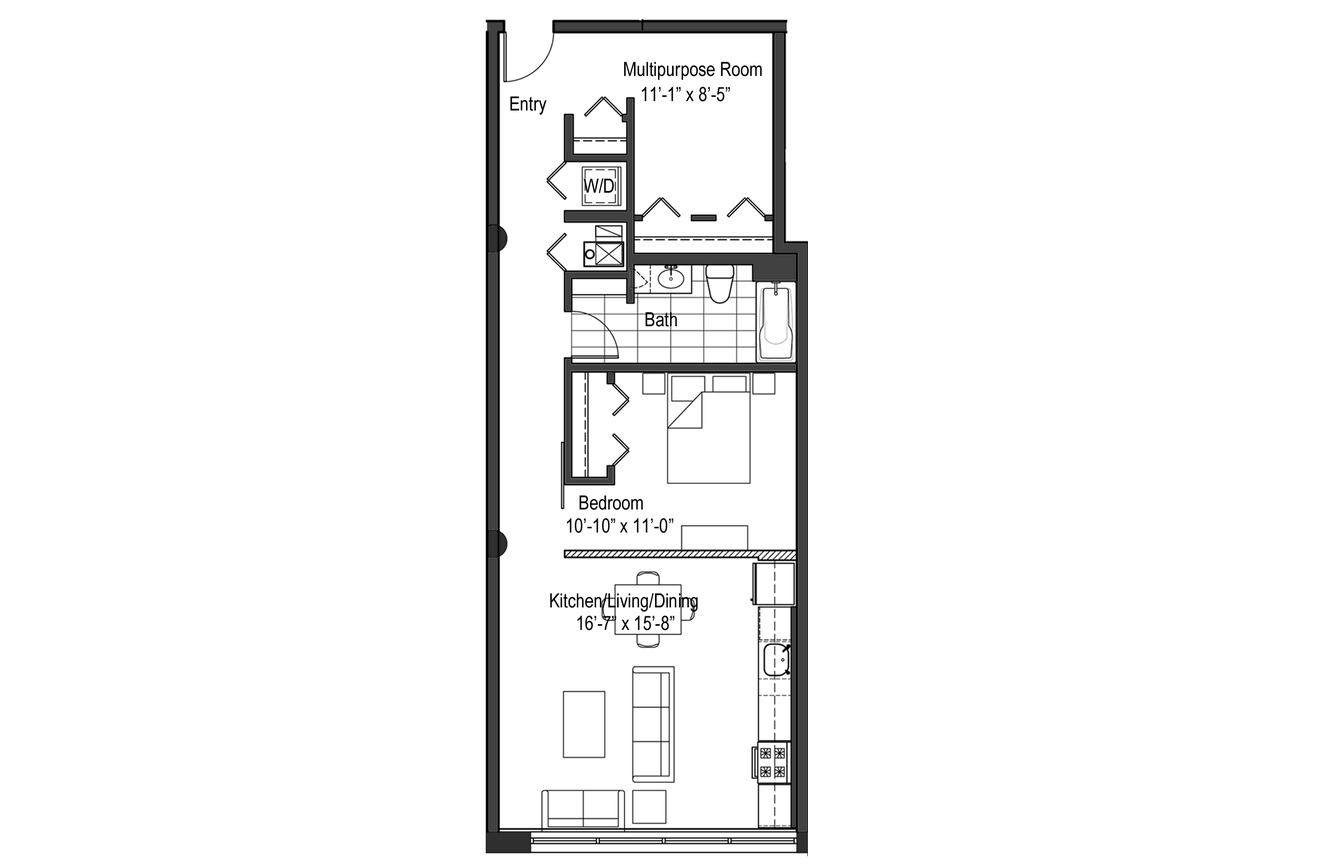
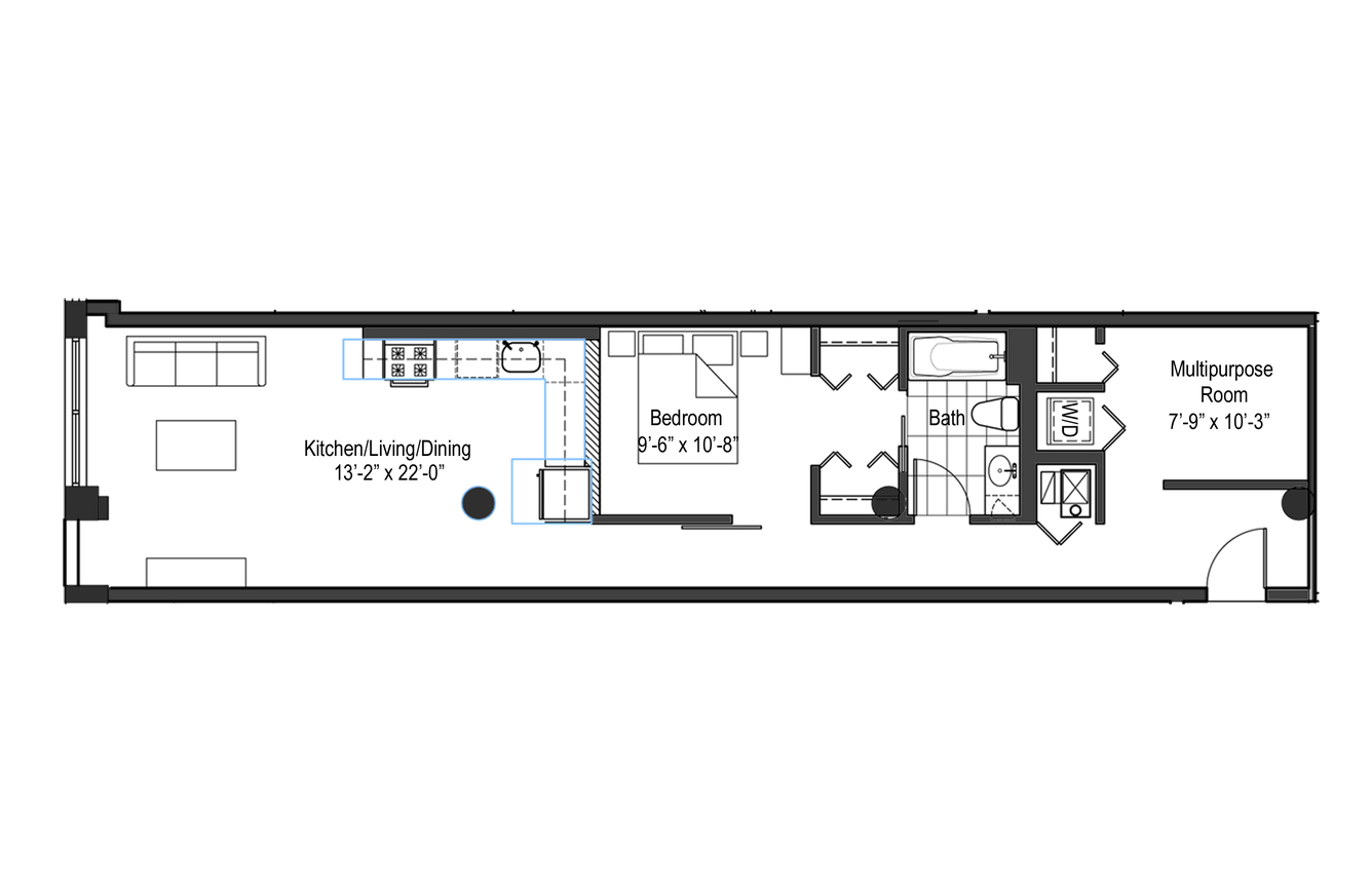
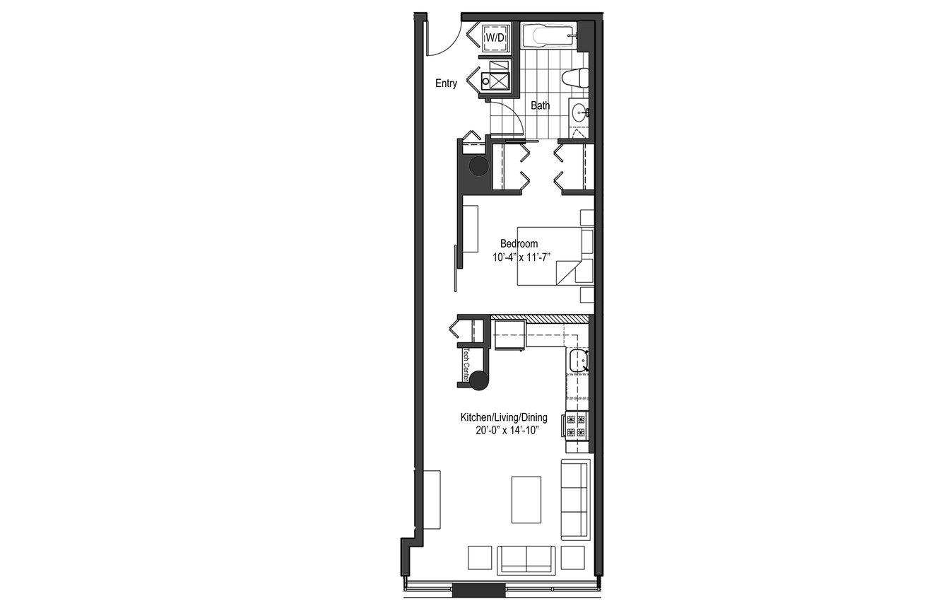
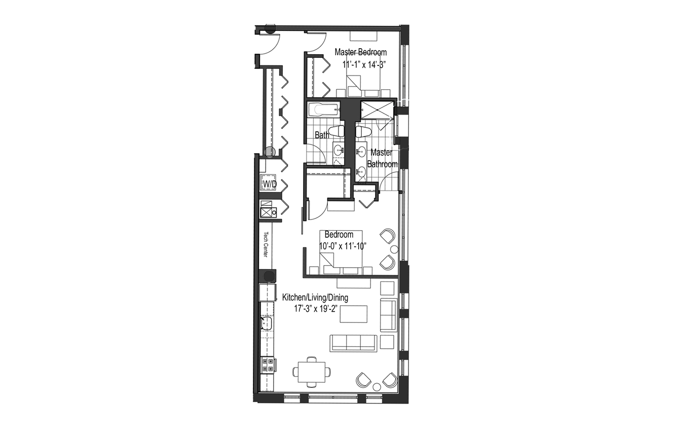
Layout Options:

Studio, 1, 2 bedroom(s)

Number of Units:

74

Welcome Home

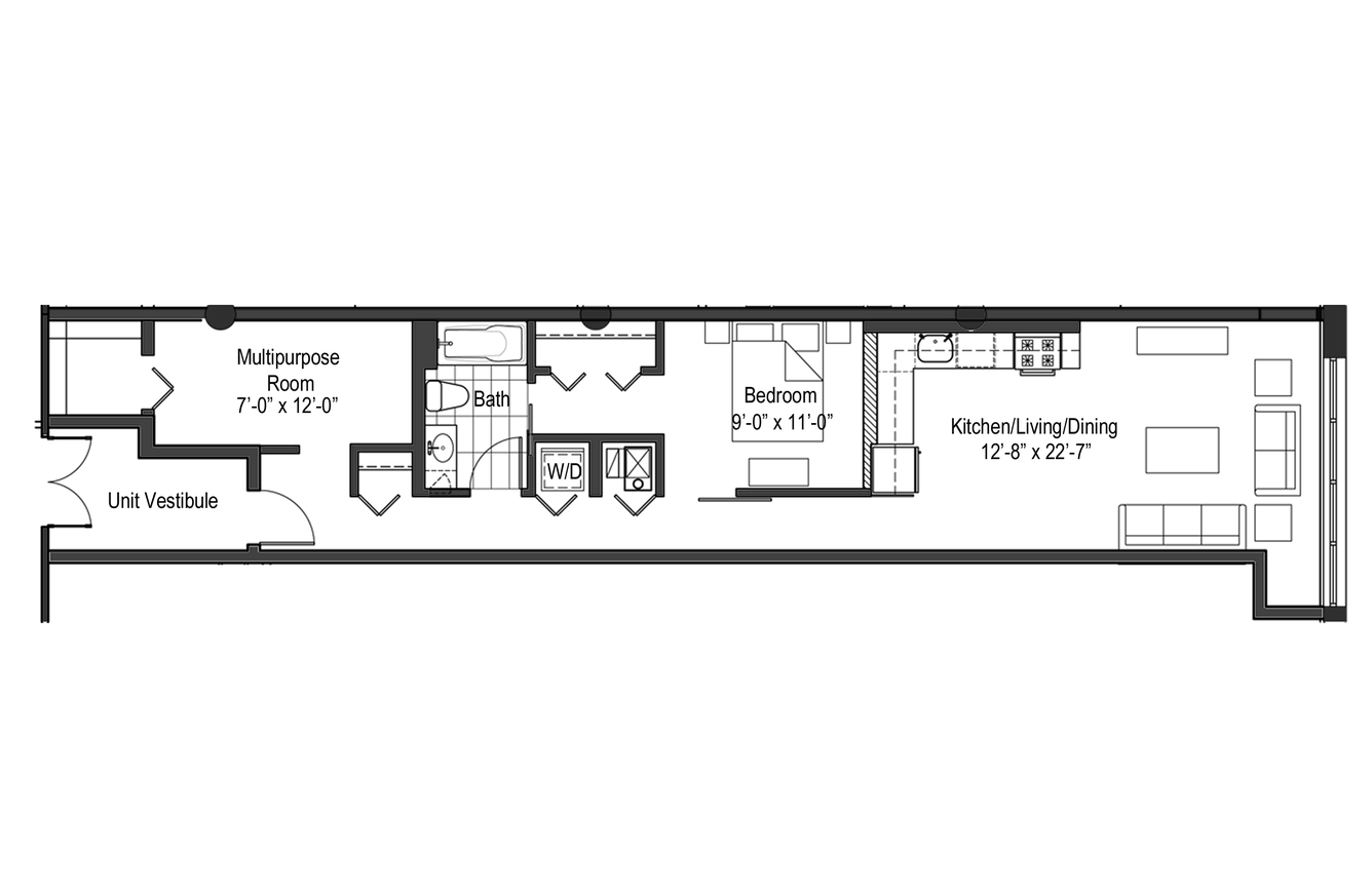
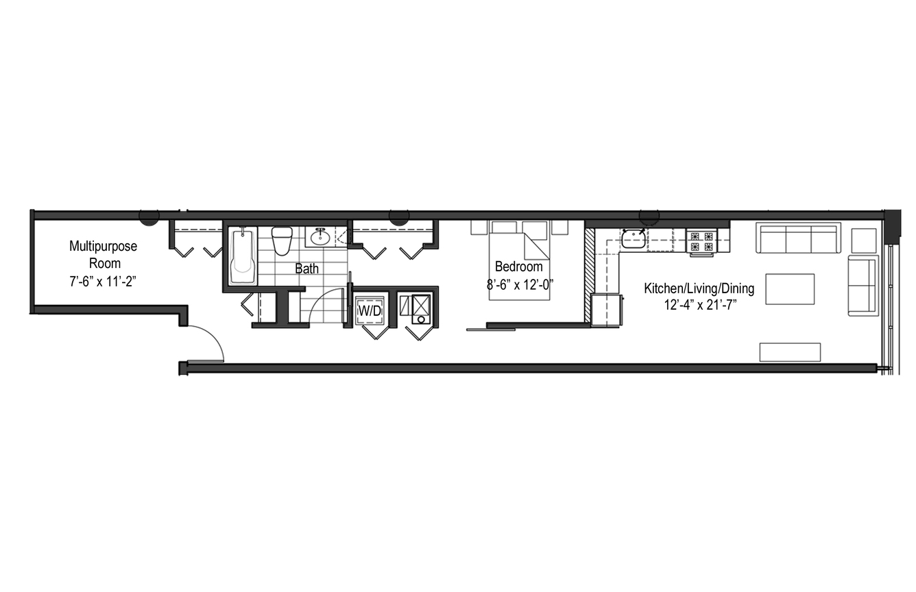
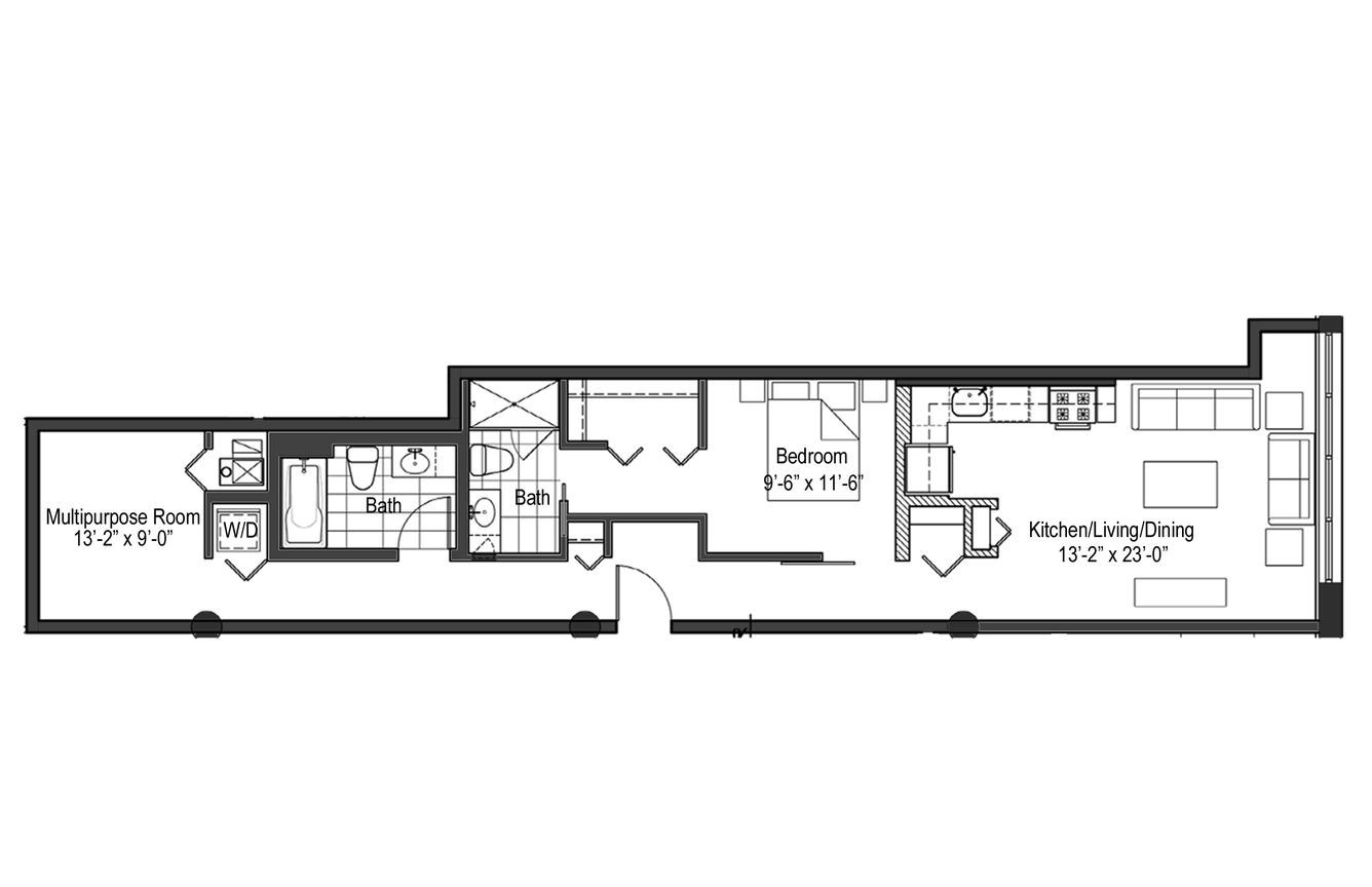
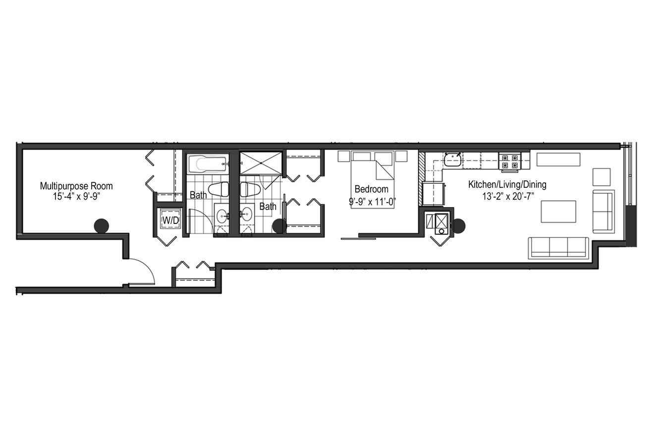
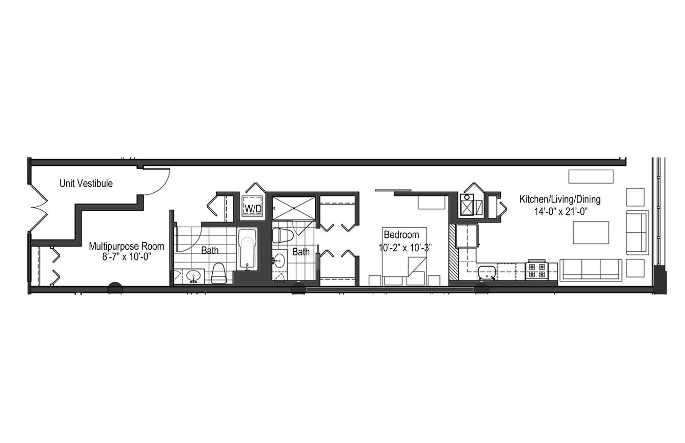
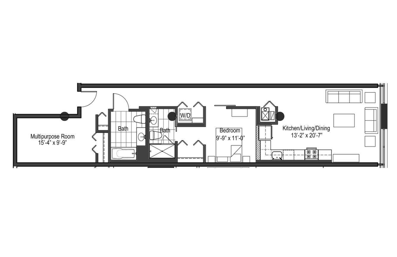
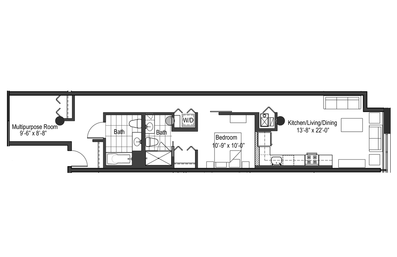
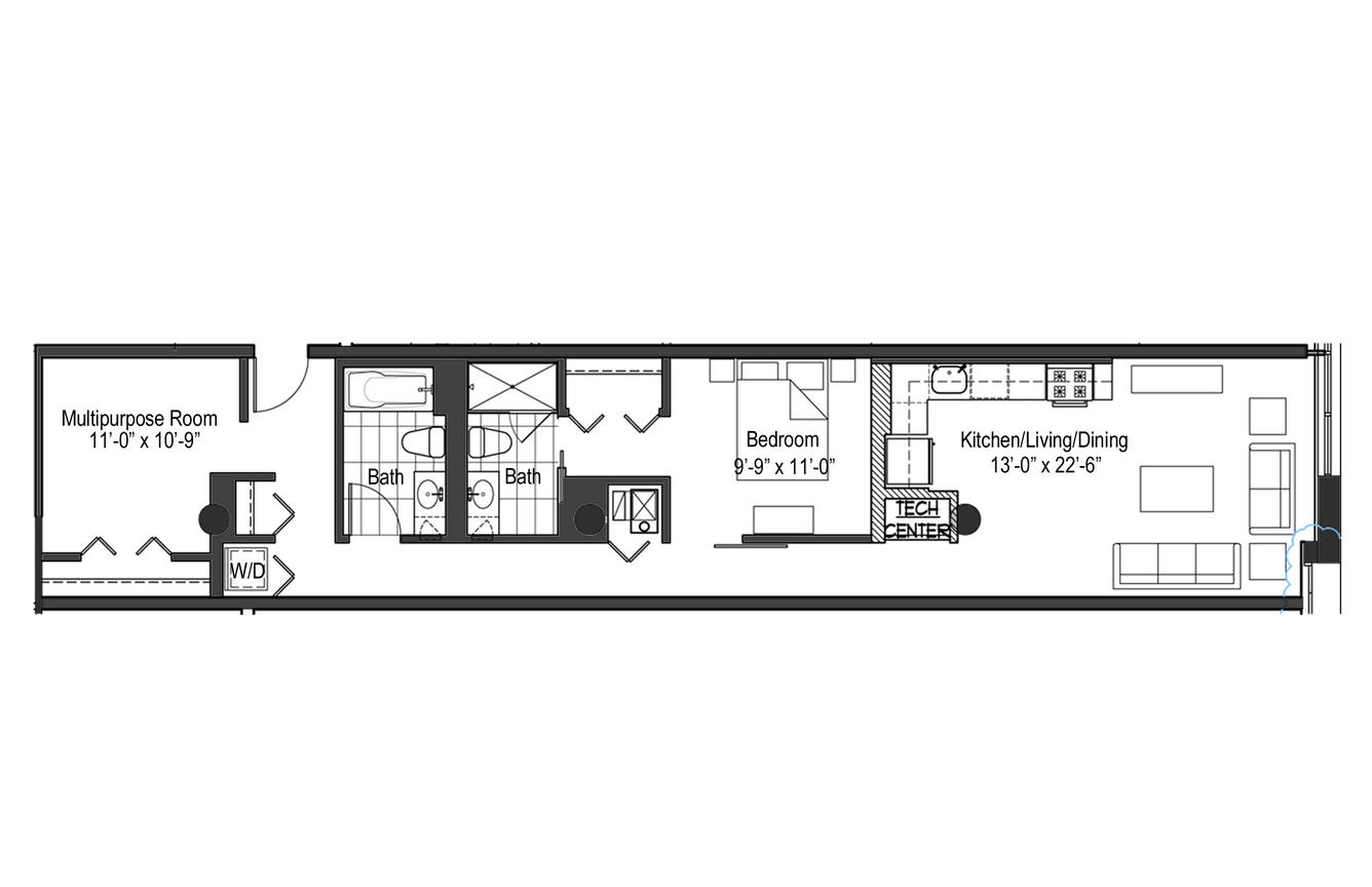
At 13thirteen Randolph Street Lofts, you'll be living in Chicago's trendy West Loop neighborhood with a home full of modern features and amentiies. With an impressive selection of 35 floor plans, you can find the studio, one- or two-bedroom layout that speaks to your unique style. While the floor plans range in size, they all share many of the same features, including polished concrete floors, 11-foot ceilings, quartz countertops, and expansive closets.

Browse Floor Plans

View and select floor plans using the browser below to find the perfect fit for you. Contact us or check availability for more information

Floorplans are artist's rendering. All dimensions are approximate. Actual products and specifications may vary in dimension or detail. Not all features are available in every rental home. Prices and availability are subject to change. SQFT listed is an approximate value for each unit. Please see a representative for details.
View Amenities:
Apartment Amenities
  • Energy-Efficient Stainless Steel Appliances
  • Quartz Countertops
  • Italian Cabinetry
  • White Subway Tile Backsplashes
  • Soaring 11-foot Ceilings
  • Polished Concrete Flooring
  • Full Sized Washer and Dryer
  • Under Cabinet Lighting
Community Amenities
  • Bar & Lounge Area
  • Private Media Room
  • Outdoor Grill Stations
  • Close to Union Park Festivals
  • Indoor Heated Garage Parking
  • Pet Friendly with No Weight Limits
  • Complimentary Heated Bike Storage
  • Historic Loft Building with Green Design
  • 24/7 Fitness Center with Cardio & Free Weights
  • Rooftop Sky Club with Stunning Views, Outdoor Lounge Pool Table & Bar

explore the area

View some of the best local attractions, as decided by current residents and neighbors using Yelp!

Loading Locations...

Residents

Online Rent Payments, Online Maintenance Requests, Transfer Program,
Resident Referral Program, 24 Hour Emergency Maintenance, 24 Hour Lockout Service, Package Acceptance

Pay Rent

We've set up a quick and easy way for you to pay your rent online so you can focus on the more important and fun things in life. Visit our Resident Portal and pay rent with a simple click of the button.

Pay Rent
Service Request

We strive to make your experience at 13thirteen Randolph Street Lofts effortless and worry free. Should there be any concerns about your home, please fill out your resident service request and our team will contact you within 24-Hours.

Service Request

Contact Us

Fill out the form below with any questions or comments
and we will follow up shortly.

get in touch
Office Hours:

Monday to Friday: 9:00 AM - 6:00 PM
Saturday: 10:00 AM - 5:00 PM
Sunday: Closed

Please enter your name
A valid email address is required
Please enter a valid phone number
Confirm by clicking the image with the number 3: